(契約1か月以上のみ)エステート・モア大名 Bのマンスリーマンション物件詳細「グッドマンスリー」

フリーワード検索

検索

(契約1か月以上のみ)エステート・モア大名 Bの物件詳細

  • (契約1か月以上のみ)エステート・モア大名 Bの物件写真1
  • (契約1か月以上のみ)エステート・モア大名 Bの物件写真2
  • (契約1か月以上のみ)エステート・モア大名 Bの物件写真3
  • (契約1か月以上のみ)エステート・モア大名 Bの物件写真4
  • (契約1か月以上のみ)エステート・モア大名 Bの物件写真5
  • (契約1か月以上のみ)エステート・モア大名 Bの物件写真6
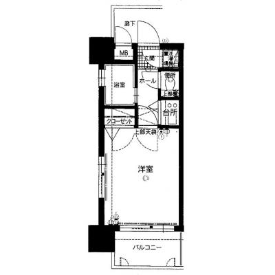
  • (契約1か月以上のみ)エステート・モア大名 Bの間取り図
  • (契約1か月以上のみ)エステート・モア大名 Bの物件地図

間取図・画像と現況が異なる場合は現況を優先とします。

所在地
福岡県福岡市中央区大名1丁目3-17
最寄り駅
福岡市地下鉄空港線赤坂(福岡)駅 徒歩9分
車でのアクセス
間取り
1K
面積
19m²
築年月
1996年1月
定員人数
1名
ベッドタイプ
シングル
駐車場
×
構造
鉄筋コンクリート造/10階建
最低契約日数
7日
  • オートロック
  • インターネット
  • クローゼット
  • エアコン
  • 洗面所独立
  • バス・トイレ別
  • 洗濯機
  • フローリング
  • ペット可
  • 宅配BOX
電話でのお問い合わせ

お問い合わせ先

運営不動産会社:松栄エステート株式会社

TEL
050-5459-5504
FAX

利用料金

期間 賃料 光熱費 清掃費
1ヶ月未満 3,700円/日 880円/日 13,200円/回(契約時)
1ヶ月以上 3,500円/日 105,000円/月 880円/日 26,400円/月 16,500円/回(契約時)
その他費用 ①事務手数料:7,700円/回(税込)②清掃費:20日以上は16,500円(税込)、60日以上は22,000円(税込)です。(延長も含む)③別途寝具セット:6,600円(税込)④1ヶ月未満の家賃は消費税が課税されます。
  • ご契約日数によって料金が異なる場合があります。詳しくは物件の運営会社にお問合せ下さい。

設備・備品

電化製品 エアコン、テレビ、ドライヤー、炊飯ジャー、洗濯機、掃除機、電気ポット、電子レンジ、冷蔵庫
家具製品 イス、カーテン付き、ソファー、テレビ台、デスク、ベッド
キッチン類 お玉、まな板、ガスコンロ、キッチン洗剤、スポンジ、フライパン、フライ返し、食器類、布巾、包丁
バス・トイレ類 トイレットペーパー、シャワー、シャンプー、タオル、トイレ洗剤、トイレ用ゴミ箱、トイレ用ブラシ、ハンドソープ、バスマット、バス洗剤、ボディータオル、リンス、洗面器、風呂用スポンジ
備品、消耗品 ゴミ箱、スリッパ、ティッシュ、ハンガー、靴べら、雑巾、室内物干し、洗剤、洗濯干し、卓上鏡、目覚まし時計
その他 ガス、トイレ、下水道、給湯設備、上水道、分譲タイプ、浴室
物件設備 エレベーター、オートロック
部屋設備 クローゼット、バス・トイレ別、フローリング、角部屋、洗浄機能付き便座、洗濯機置場(室内)、冷暖房完備

備品オプションの詳細を見るにはこちらをクリック

ホームWiFi端末(円/日 税込) ☆ホームワイファイ5G☆
・330円/日(税込)での貸出 可
・使用上限なし ※短期間に過度な通信をした場合は速度制限がかかります。
・5G対応モデル
・LANケーブルジャックあり(ホームプリンター等接続可)
※契約住居内からの持出不可。
※台数に限りがあるため、対応できない場合がございます。
330円

地図情報

契約情報

契約形態 定期借家 取引形態 貸  主
保証人 不要 最低契約日数 7日
契約時に必要な書類等 身分証明書(運転免許証・パスポート・マイナンバーカード等の失効していない顔写真付き証明書)
その他の契約等の注意点 緊急連絡先 必須 ※未成年者・学生の方、日本国外在住の方は登録不可 / (内覧について) 運営上予約困難なため受付不可
お支払い方法 一括可、クレジットカード決済可、振込可、現金可
カード決済利用可能種類 VISA、MASTER、JCB、AMEX、DINERS

運営不動産会社情報

運営会社
松栄エステート株式会社
所在地
〒814-0032 福岡県福岡市早良区小田部1丁目6-17
TEL1
050-5459-5504
TEL2
FAX
営業時間
9:30~18:30
営業日
月・火・水・木・金・土 / 定休:日 祝 不定(HP参照)

オススメコメント

☆ 交 通 ☆
・地下鉄空港線「赤坂駅」徒歩9分

☆ 周辺情報 ☆
・ファミリーマート大名1丁目店    徒歩2分
・マックスバリュエクスプレス大名店  徒歩4分
・カイタックスクウェアガーデン    徒歩4分
・天神ドンキホーテ          徒歩7分
・福岡大名一(郵便局)        徒歩3分

☆ 有料オプション ☆
・ホームWiFi(5G対応) 使用上限なし! 330円/日(税込)
 →ホームプリンター接続可能です。(LANジャック有)
 →台数に限りがございます。
 →短期間に過度の通信があった場合は速度制限がかかります。

・毛布貸出 1,650円/回・始(税込)

☆家具・家電・備品の一覧☆
●家電→炊飯ジャー、電子レンジ、洗濯機、冷蔵庫、ドライヤー、コードレス掃除機、エアコン、テレビ(サービス設置 ※不要の場合は要申告・地上波のみ)、電気ポット(※部屋により瞬間湯沸し器)
●家具→ベッド、ベッドマット、イス、デスク、カーテン。(寝具一式はレンタルです。)
●キッチン関係→キッチンタオル、しゃもじ、フライパン(小)、フライパン深型 又は 鍋(※部屋により相違あり)、ふた、お玉、キッチンハサミ、まな板、包丁、スプーン(大・小✕1本)、フォーク(大・小✕1本)、箸、食器(カレー皿・ラーメン皿・マグカップ・深皿小・平皿小・お茶碗)、キッチン洗剤、キッチンスポンジ、キッチンペーパー(2~3本)、キッチンペーパー立て、水切りネット、透明ごみ袋
●浴室関係→バスマット、バスチェア、洗面器、ボディタオル、シャンプー、リンス、ボディーソープ、バスマジックリン、浴室掃除用スポンジ、バスタオル、フェイスタオル
●トイレ関係→トイレブラシ、トイレマジックリン、トイレットペーパー(予備数本あり)
●洗面器具→歯ブラシ、歯磨き粉、歯磨き用プラコップ、ハンドソープ
●その他→ハンガー✕4本、洗剤(11個入り)ジェルボール型、洗濯バサミ、滑り止めハンガー✕4本、ゴミ箱フタ付(大)、ゴミ箱フタ付(中)、スリッパ、靴ベラ、福岡市指定ゴミ袋✕数枚(可燃・不燃・ペットボトル/ビン)、ティッシュペーパー(2箱)、吹付消臭剤 以上